暖橘色极简风,超越冰冷,带来温暖与活力

设计机构丨JORYA玖雅

主创设计师丨衷国

设计面积丨54㎡

房屋位置丨北京朝阳区苹果社区

户型丨2室2厅1卫

工长:朱勇

监理:高士琦

主材搭配师:佟蒙

预算清单丨28w(基础施工8w+主材20w),不含家具电器

用极简的线条勾勒出最具灵性的空间。

Outlinethemostspiritualspaceusingminimalistlines.

▌风格诠释_StyleDefinition░



房屋一进门便能看到,干净利落的线条贯穿了整个空间,水泥艺术漆独有的自然纹路,给极简的空间润色不少,搭配温暖舒适的柚木元素,简练而雅致,给人一种素而不寡的高级感。

屋主本身从事广告类设计行业,本身也是细节控,对颜色、细节要求比较高。喜欢极简的空间,也喜欢打理和装扮自己的房屋。对于美感上的事物,有着自己独特的审美和见解。

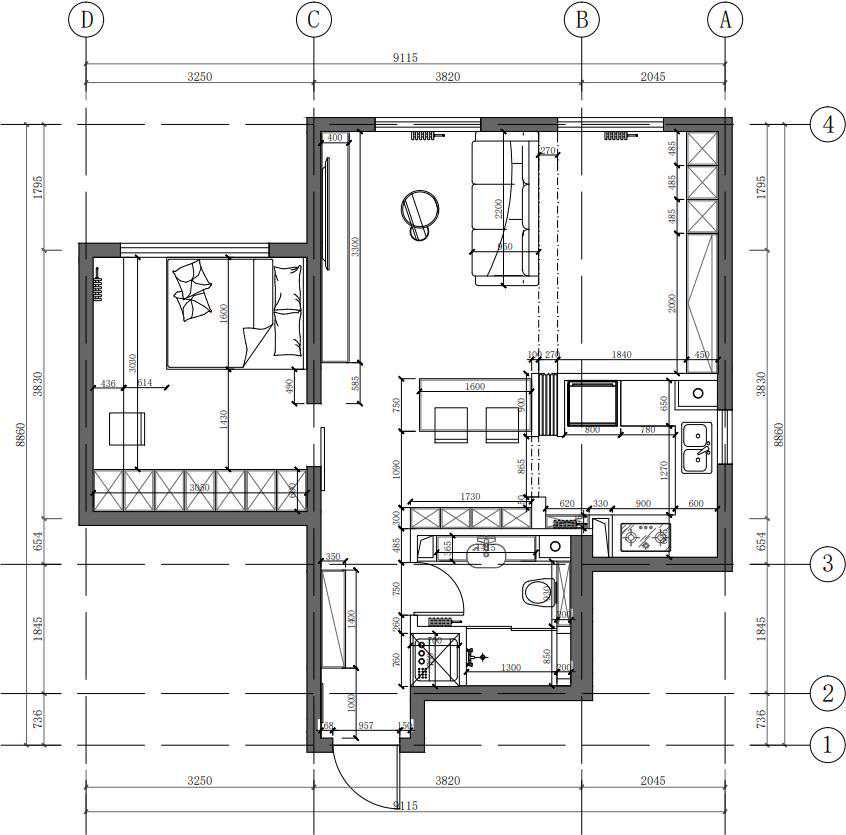
▌原始测绘图_OriginalPlan░


此案例为一套54平米的一居室。设计之初考虑的是,这是一个大的空间,想在保持客厅完整、开阔性的同时,能另外组建独立的房间,可供临时来人居住,在没有客人时,还能恢复如初。让房屋有不同的使用场景,可以不断变化。于是根据这个思路,对整个房间进行了改造。

▌墙体改造图_WallsModification░



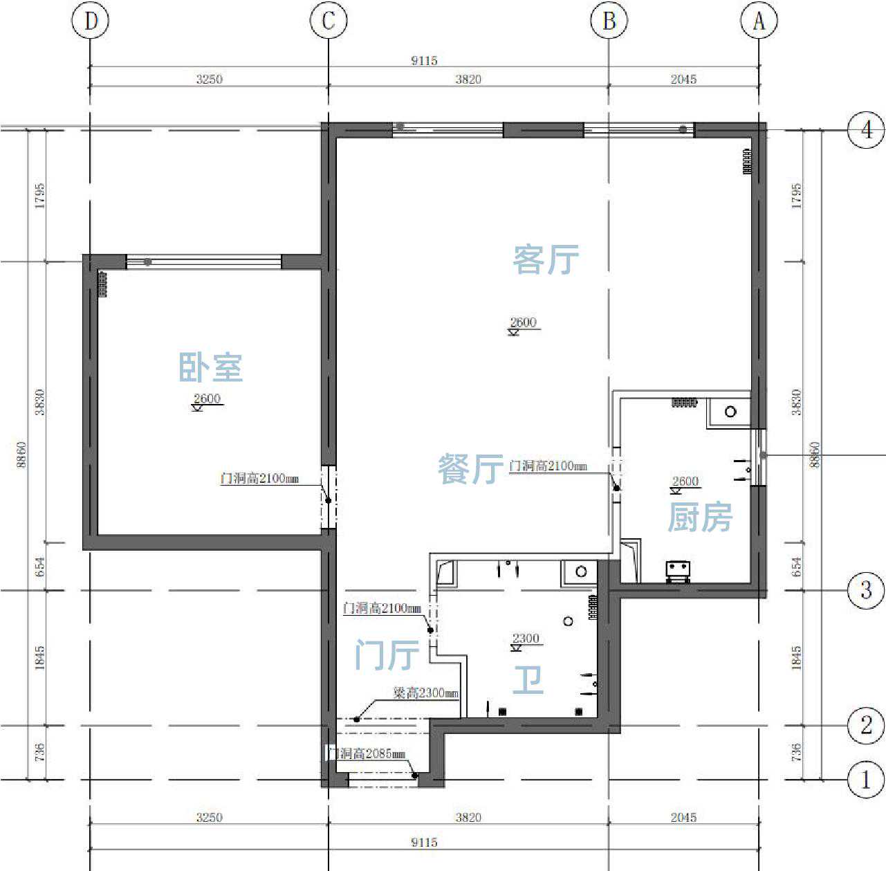
▌最终平面图_FinalFloorPlan░


格局改造亮点:

1、五扇玻璃推拉门。

一组四联动的移门,可用于临时分隔客厅,隔出一间独立小卧室;一组单扇移门为厨房门(4+1的组合)。吊轨轨道隐藏在吊顶内,五扇门隐藏于隔断墙内,平时不使用时,看不到门本身,保持了原本空间的完整性。

2、主卧的整面墙衣柜。

通过移动主卧入口,使其背后能容下整面墙的衣柜。衣柜长度由原来的2米变成了3米。

▌门厅_EntranceHall░


房屋的墙、顶面统一采用灰色的水泥艺术漆涂料,地面也使用了同色系的地砖。给房屋做了一个很素雅的“底妆”。当我们想让某个地方变成什么样子,可以通过各种装饰去点缀,让这个区域有完全不一样的感受。屋主置办的银色质感小电器,就起到了很好的点缀作用。


玄关门洞与卫生间门洞紧挨着,

共用一面玻璃推拉门。


玄关柜尺寸详解图

▌卫生间_RestRoom░


干湿分区。黑白灰的调调延申到卫生间,

马桶也选用了黑色哑光款。


干湿区之间并没有选用浴室门,

而是由一扇玻璃隔开,进一步保证空间开阔。


壁龛没有用砖砌,而是选用了黑色成品的金属壁龛。

朱红色的小块砖带来热情。


屋子里大部分的木作柜门都是柚木直纹木贴皮,

从浴室柜开始便是。浴室柜进深只有33公分,

选用了超薄的内嵌水盆,龙头也被放置在了侧面。

▌餐厅_DiningRoom░


餐边柜的框特意加粗,嵌入黑条,

与整个环境相搭配。


餐边柜尺寸详解图


餐桌吊灯也是黑色直线的造型。


镜面不锈钢质感的咖啡机和面包机,

带来了质感。

▌厨房_Kitchen░


只有4平米的厨房,但通过U型布局,

不但放入了冰箱,还有一面电器柜。



烹饪区橱柜尺寸详解图



电器区橱柜尺寸详解图

▌起居室_SittingRoom░


起居室很宽敞,有两扇采光窗。

在推拉门收起来的时候,

是一个开敞的活动空间。


客厅在整合为一个空间时,

沙发可放置在空间中心,

正面形成沙发+茶几+电视的三点一线式布局。


沙发背后靠墙处,做了一整面通顶收纳柜,

长度有3.4米,用于客厅储物。

柜体内部隐藏了一张折叠床,平时完全看不出来。


客厅收纳柜尺寸详解图

屋子里的靠墙柜都没有用封板

(侧封板和顶封板,用来找补墙顶面的不方正),

因此屋主对施工的质量赞不绝口。


沙发是活动的,可以挪动到收纳柜处

(沙发背后),

腾出前面的空间作为活动区,

如健身、主机游戏、交互式体感游戏等。



电视墙采用了极简的处理手法,

一条条薄薄的电视柜将所有小电器收纳起来。


推拉门轨道正对两个窗户中间的墙体,

当推拉门打开时,正好将两个窗户分给两边的房间。

两个窗户都做了外凸窗套,使窗台加宽,

并嵌入了百叶窗,呼应客厅沙发的颜色。



折叠玻璃门拉开。灯芯的材质,

既能透光,又不透视。



独立的小客厅。


折叠床拉出来的样子。

客厅变出一个小卧室。

主卧门同样是轨道推拉门,

但将轨道隐藏到了门框内,“轨随门动”,

拉开和关上都看不到任何五金件。

▌主卧_MasterRoom░

床头有一张3米长的悬浮书桌。

由进深50公分,厚度3公分的实木板材,

底部外置三角架来固定而成。

无框门洞符合极简的设计语言。

一整面墙的衣柜。

▌案例总结_CaseSummary░

格局:

1、一居、两居灵活切换。

2、微移主卧门,让主卧拥有整面墙的收纳柜。

装饰:

1、5扇推拉门全部隐藏到墙体内,不会造成视觉拥堵。

2、水泥艺术漆搭配柚木定制柜,粗野中点缀热情。

▌带尺寸的平面图_FinalLayoutwithDimension░

▌设计师寄语_Designer'sWordstoCase░

通过设计改造,让这个房屋具备可变化的

承载力,同时不影响房屋开阔的视觉感,

整体性,能满足各种场景灵活的拓展,

以及颜色的和谐舒适感,这是我特别喜欢

这个设计的一个原因。

版权归作者JORYA玖雅所有

如需转载本文请联系“JORYA玖雅”账号

版权声明:本站所有作品(图文、音视频)均由用户自行上传分享,仅供网友学习交流,不声明或保证其内容的正确性,如发现本站有涉嫌抄袭侵权/违法违规的内容。请举报,一经查实,本站将立刻删除。

相关推荐