
影院建筑在近代上海的公共娱乐空间中举足轻重。据笔者粗略统计,自1908年西班牙人安东尼奥·雷玛斯在乍浦路滑冰场设立虹口活动影戏院,1909年又在北四川路海宁路口设立了维多利亚大戏院,1930年代达到影院建筑的建造高峰,至1942年,约有70余座独立的影院建筑在上海建造。不同时期、不同风格的影院建筑,丰富了城市的面貌。看电影,也逐渐成为近代上海一种新的日常娱乐活动。
在闭关5年后,2016年美琪大戏院重新开门迎客。
让我们将时针拨回80年前。
抗战期间的上海,各项建设处于低潮。但1941年建成于戈登路(今江宁路)和麦边路(今奉贤路)的美琪大戏院(江宁路66号),不论从建筑风格、形式还是室内空间、影院设施乃至建造质量来考量,均不失为近代上海现代主义建筑的佳作,在战乱的动荡不安中,为人们提供了一处暂时逃离现实的、影像虚拟世界。

美琪的观影空间序列
美琪大戏院是在原大华饭店的基址上建造的,由联怡股份有限公司出资,联怡股份有限公司彼时已在上海兴建了北京大戏院和南京大戏院。
美琪大戏院坐落于两条街道相交处,街角的圆柱形体量、圆柱体两侧的矩形体量及其简洁立面,使其在所处街区中极具识别性。建筑的主要入口即位于圆形体量,圆柱体开启竖向长窗,长窗宽度与窗间墙的宽度相仿,两者交叉分隔形成垂直线条,长窗与窗间墙面通过收分的线脚进行交接,弱化了圆柱体的实体感,增加了通透感。沿街展开的矩形体量则相反,立面上点缀着几组面积不大的小窗,几何构图十分舒服,体积感十足,体现了两种不同的虚实关系。建筑檐部和窗户的装饰图案可以看到中国传统建筑的语言特点。白天,感受到的是建筑的体量感,圆形门厅的竖向长窗将自然光线引入室内空间,静谧而温暖;夜晚,建筑氛围发生了反转,内部灯光和室内场景透出来,矩形体量好像“消失”在街道,而圆形体量脱颖而出成为统领街道的“灯塔”,向城市展示它华丽的高敞门厅。

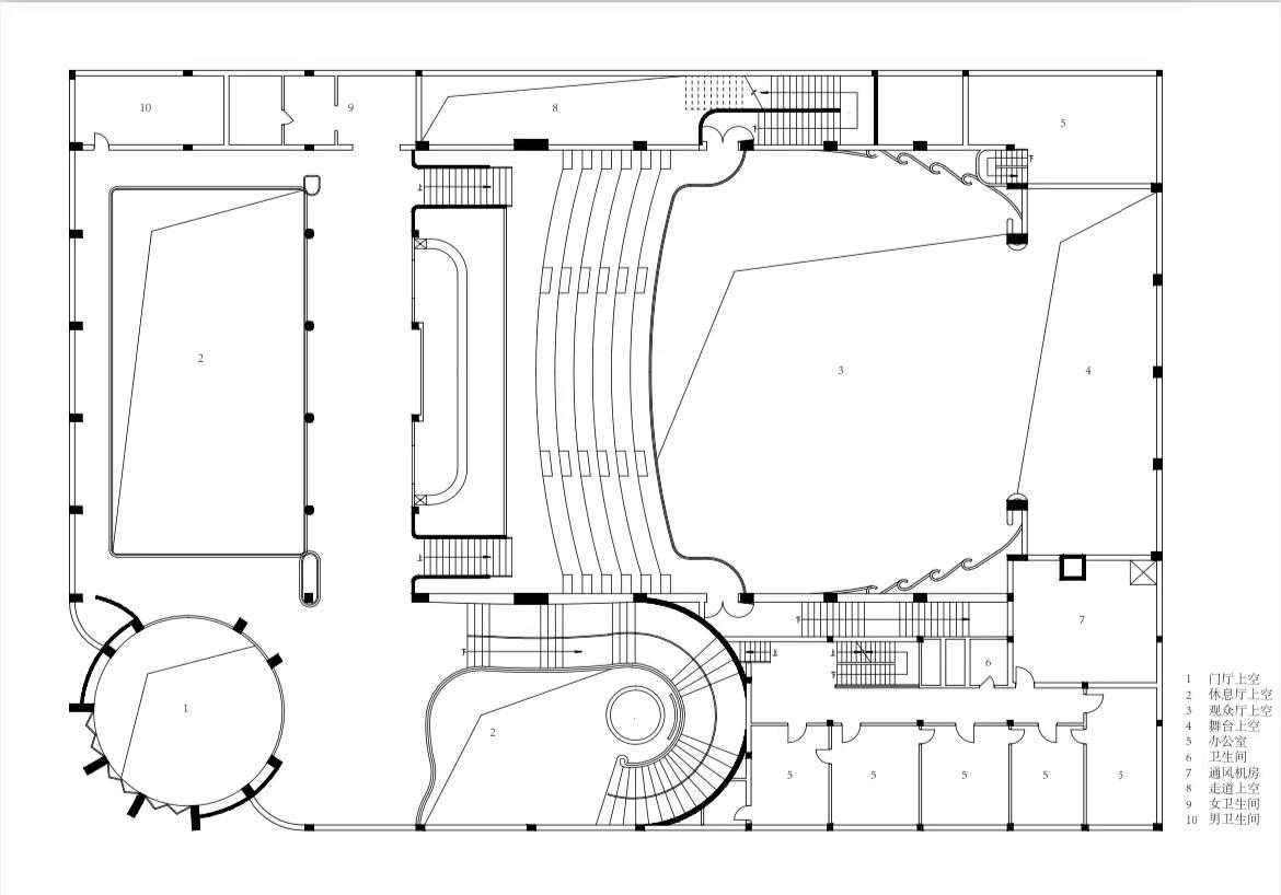
早期近代影院建筑中门厅很小,在后续发展中,门厅逐渐扩大并出现了单独的休息厅,形成入口门厅—休息厅—观演厅的空间序列。
美琪大戏院对这一序列又做了新的发挥,在组织入口门厅、休息厅和观演厅的空间关系时,做了充分利用转角地形和基于功能主义的考虑。观众厅沿地块长向布置,东南侧布置管理办公用房;入口圆形门厅布置于街道转角处,分别向两侧延伸出两个通向观演厅的休息厅,一侧连接首层观演厅,另一侧休息厅通过弧形楼梯可达楼座层的观演厅。在满足各功能空间使用需求的同时,休息厅面积达到最大化——几乎是观演厅面积的三分之二,这在当时上海的影院建筑中较为突出,并成为空间设计的重点。圆形的入口门厅与两个矩形的休息厅均采用两层通高的开敞方式,使整个公共空间连为一体。连接二楼观演厅的弧线楼梯与圆形门厅形成呼应,成为空间中着力刻画的另一处重点,弧线的元素也用在了建筑其它细部的处理之中。建筑地面采用水磨石,十分简洁。为了保证休息厅的布局和面积,影院建筑临街常设置的店铺也被大幅缩减,休息厅的重要性得到进一步强化。这一方面是出于快速疏散观众的功能需求;另一方面,丰富了观影者进入观演厅前的空间体验,强化了看电影的仪式感。

在处理当时戏院设计章程中的观演厅地平须高于街道地平的规定(《关于戏院等之特别章程》中规定“底层或厅座之水平——此类房屋中,底层地板至少在近公路路冠水平十二寸以上”)时,美琪大戏院的做法是:将入口门厅与城市街道的地平设为同一标高,而在入口门厅与观众休息厅之间设置踏步,实现观演厅标高与街道标高的高差要求。这一看似室内外之间不设高差的做法将城市街道伸入建筑,使建筑的门厅与城市的街道空间在一定程度上融为一体,暗示影院是城市公共空间的延伸。入口上方设置雨篷,下方被几堵片墙分隔出几道大门,片墙均指向门厅圆心,方向感明确,营造门厅与街道间空间的层次,加强人们进入影院的空间体验。
观演厅采用钟形平面,上下两层,一层设一千余座位,楼座层设500余座位,共计座位超过1500个,高度19米。观众厅内采用了奢华的色调,与室外的简洁色调形成强烈对比。近代上海的不少影院建筑,为保有经营的灵活性,并未将电影放映和戏剧演出完全分开,常是在观演厅中同时设有舞台和银幕,美琪大戏院也不例外。银幕被悬挂在舞台后方,舞台下部未设其他功能性的空间。当银幕逐渐成为观众厅设计的重要控制因素时,观演厅室内和舞台的设计得到了简化,同时受装饰艺术和现代主义的影响,逐渐摒弃了繁复的古典主义装饰语言,观演厅的天花采用流线型,结合灯光设计,将观众视线引向舞台。

美琪大戏院一楼平面图(宫文婧根据上海城建档案馆的档案图纸绘制)

美琪大戏院二楼平面图(宫文婧根据上海城建档案馆的档案图纸绘制)
观演厅观众席的设计同时考虑了舞台演出和电影放映的要求,坐席按中间和两侧分成三大块:中间部分观众席与银幕平行,宽度大致与银幕齐宽,两侧部分的观众席排布略微倾斜与舞台的弧形边缘相呼应;前后排座位间相互错开,一楼地坪从靠近舞台到远离舞台逐渐起坡,从而保证后排观众的视线不被前排观众遮挡。从当时的施工图中可以看到,观众厅纵向的距离是通过台口的位置来进行控制的。
美琪大戏院在影院公共空间和观影序列的设计和重组中,室内外高差的处理,对外体现了对城市空间的参与,强调了一种公共性;门厅与侧厅的分离,对内进一步增强了观影的社交性与仪式性。
美琪的现代主义设计
美琪大戏院是近代上海为数不多的由中国建筑师设计的同时具有现代主义和装饰艺术风格的影院建筑,它的设计者是著名建筑师范文照,结构工程师为杨宽麟,由陶桂林创办的馥记营造厂营建。范文照毕业于上海圣约翰大学,后留学美国宾夕法尼亚大学,是中国第一代留学归国的建筑师。1930年范文照和赵深合作设计了古典主义风格的南京大戏院(今上海音乐厅)。

如果将南京大戏院和美琪大戏院稍作比较,在建筑风格、影院建筑功能流线的安排方面,不难找到一些相似的线索、延续的思考和整体的反思。两座建筑均占据街道转角,观演厅都采用钟形平面,都在观演厅长边一侧布置有休息厅。在南京大戏院中,建筑在街道转角处切去一个角,设置商店,主入口在沿爱多亚路(今延安东路)一侧居中布置,使其可以从容地完成对称的古典主义构图,并保持建筑从入口门厅到观演厅基本在同一轴线上。出于功能的考虑,在街道转角商店和观演厅长边一侧的休息厅之间设置了一个圆形空间来衔接。在美琪大戏院中,受现代主义建筑的影响,摆脱了古典主义建筑对平面布局和立面构图的束缚,南京大戏院中的圆形过渡空间被独立的圆形门厅取代了,圆形门厅和方形侧厅的组合使平面布局更加灵活,侧厅与圆形门厅之间的环廊,使门厅和侧厅隔而不断,功能分工更加合理,空间关系更加明确,又表现出现代主义建筑强调的空间的流动性;在外形上,以圆柱形体量统领建筑街角空间,凸显建筑的体量关系。
从南京大戏院到美琪大戏院,体现了范文照不同时期的设计理念,也成为他不同设计理念的代表作品之一。在其他一些设计实践中,也可以看到范文照设计理念逐渐由古典主义向现代主义的转变。
范文照在他1933年的文章《中国建筑之魅力》中指出:建筑艺术就存在于我们身边,却常被忽略,阅读建筑可以从中阅读历史,从中体会美好;中国传统建筑的艺术特色无与伦比;设计中应充分认识中西、古典或现代风格的调和问题,“建筑的构思应当从内向外,而不是从外向内”……

1934年范文照完成了从当时的北京大戏院改建为丽都大戏院的工作,1939年设计了跑马场南侧、位于爱多亚路、嵩山路的沪光电影院。在丽都和沪光中已可以看到建筑师尝试现代主义的建筑语言,不论是丽都的弧形墙面还是沪光的平直墙面,配以简洁的连续方窗,没有过多线脚,没有严谨对称、繁复柱式、三段式的构图,取而代之的是较为自由的现代几何构图以及忠实反映功能的开窗设计。同时,一些经过抽象的中国传统建筑语言作为装饰出现在立面的窗框、檐口、雨棚等细部,也使建筑表现出些许装饰艺术风格。在南京大戏院之后,范文照设计了协发公寓(1934年),在美琪大戏院之后,他设计了集雅公寓(1942年),这两处公寓建筑也是现代主义风格的建筑。

入口门厅和吊灯(叶辰亮摄)
美琪的演出记忆
独具特色的现代主义气息、灵活舒适的空间布局和一流的观演设施,使美琪大戏院跻身当时上海放映西片的首轮影院,号称“亚洲第一”的影剧院。英文majestic有壮丽、雄伟、高贵之意,原大华饭店的英文名为MajesticHall;虽然剧院的英文名字沿用了majestic,但中文使用的“美琪”二字,来自影院收到的2000余份社会征名,表达“美轮美奂,琪玉无瑕”的含义,又与英文majestic发音相近。1941年10月15日首映日的美国歌舞片《MoonOverMiami》被翻译为《美月琪花》,与影院名称呼应。这样的营销手段在当时应该也算独树一帜的“现代”做法吧。
作为观看电影和戏剧演出的圣地,美琪大戏院的舞台还曾保持着不同寻常的“纪录”:1942年9月第一次放映国产电影《春》;它是抗战胜利后京剧大师梅兰芳息声8年后重返舞台的表演场地,1945年11月梅兰芳演出了《断桥》《游园惊梦》等选段,并连演多日;1954年8月上海市第一届人民代表大会在美琪大戏院举行;1966年9月更名为北京影剧院;1979年5月庆祝上海解放30周年,上海歌剧院在这里演出歌剧《蝴蝶夫人》;1985年初恢复原名;1988年1月北京人艺演出话剧《茶馆》……美琪大戏院在近代上海众多的影院建筑中独具一格,在上海近代建筑的发展过程中占有重要的一席之地,记录着中国第一代建筑师的近代建筑实践;也在上海市民的日常生活和文化生活中扮演了不能替代的角色,见证着上海的都市化进程。

所有这些都已走入上海城市集体记忆的深处。
1989年,美琪大戏院被公布为上海市文物保护单位,2018年11月24日,入选第三批中国“20世纪建筑遗产项目”名录。
美琪的修缮和改造
已经80岁的美琪大戏院经历过数次设备更新和改扩建,比较成规模的有1994年7月至次年5月对舞台设施做过技术改造;1999年3—10月,美琪大戏院对舞台、后台进行了改扩建,占地面积和建筑面积均有大幅增加。

2011—2016年,美琪大戏院再次闭门谢客,完成了建成以来规模最大的修缮改造工程,著名建筑师章明是这次工程的总负责人。章明先生主持完成了上海多座历史建筑的保护修复工程,其中也包括范文照参与设计的南京大戏院的改建平移工程。美琪大戏院的修缮和改造,完成了对整体结构的加固、为适应当代功能而进行的内部空间与设施的更新改造以及为恢复历史风貌进行的修缮。章明教授及其团队不仅研究了美琪大戏院建造时的图纸,也对戏院经历的几次改造做了研究,制定修缮和改造的方案。增加和改善观众和演职人员所需的功能空间;更新观演设备,例如音响、灯光、空调系统,为适应戏剧演出的灯光安排,观演厅的吊顶改变较大,由原来指向舞台的整体流线型,改为品字形;增加座椅间距,在座椅下增加空调送风口,提升舒适度;将前几次改造中覆盖在门厅、休息厅的地面和墙面的大理石材料进行更换,地面和墙壁恢复原来的奶油色水磨石材料,去掉了不符合原貌风格的装饰,代之以克制的装饰艺术风格的花纹;圆形门厅地面中心漂亮的图案,也被设计团队按照当年的配料、工艺进行了修复,得以再现;圆形门厅高悬的吊灯颇具建筑感,与门厅空间颇为契合……
从首轮影院到“精选剧场”,修缮后的美琪大戏院以历史大剧《商鞅》重新回归观众的视线,回归上海的街道,回归上海的城市生活,期待她开启又一段“美轮美奂,琪玉无瑕”的历程。
版权声明:本站所有作品(图文、音视频)均由用户自行上传分享,仅供网友学习交流,不声明或保证其内容的正确性,如发现本站有涉嫌抄袭侵权/违法违规的内容。请举报,一经查实,本站将立刻删除。